一级注册建筑师考试是从事建筑设计及相关业务活动的专业技术人员参考的一个难度很大的考试,建筑师需要兼备艺术家的审美眼光和工程师的力学知识,还需要具体不错的沟通能力。考试的内容包括场地设计、建筑方案设计、建筑技术设计,经济、施工与设计管理、设计前期与场地设计、建筑材料与构造等等。上学吧一级注册建筑师考试题库汇集了不少试题,为您学习刷题提供支持,现在就点击安装APP刷题。以下为试卷的详细内容:
一、单项选择题(本大题共90小题,每小题1分,共90分)参考答案见试卷末尾
1、建筑布置与基地之间的关系,下列说法中()不妥。
A.建筑物高度不应影响邻地建筑物的最低日照要求
B.建筑物与相邻基地边界之间应按建筑防火和消防等要求留出空地或通路
C.当建筑前后各自已留有空地和道路,并符合建筑防火规范有关规定时,则相邻基地边界两边的建筑可毗邻建造
D.除城市规划确定的永久性空地外,紧接基地边界线的建筑可以向邻地方向设洞口、门窗、阳台、挑檐,但不可设废气排出口和排泄雨水
2、基地内建筑面积大于3000m2且只有一条环通的基地道路与城市道路相连接时,基地道路的宽度不应小于多少()
A.5m
B.6m
C.7m
D.8m
3、建筑与规划结合,首先体现在选址问题上,以下哪条不是选址的主要依据()
A.项目建议书
B.可行性研究报告
C.环境保护评价报告
D.初步设计文件
4、《住宅性能评定技术标准》将住宅性能划分为五个方面,下列哪项不包括在内?()
A.适用性能
B.经济性能
C.卫生性能
D.耐久性能
5、中小学校校园内用地分类为()。
A.建筑用地,运动场地,道路用地
B.建筑用地,运动场地,其他用地
C.建筑用地,运动场地,绿化及室外科学园地,其他用地
D.建筑用地,运动用地,园林绿地,道路用地
6、与市政管网衔接的工程管线,其竖向标高和平面位置均应采用下列何种系统?()
A.黄海系高程系统和坐标系统
B.渤海系高程系统和坐标系统
C.黄海系高程系统、渤海系坐标系统
D.城市统一的高程系统和坐标系统
7、下列大、中型商场建筑基地选择的示意图中,()项不当。
A.
B.
C.
D.
8、建筑选址收集大气降水资料时,以下何者是不需要的?()
A.历年和逐月的平均、最大和最小降雨量
B.一次暴雨持续时间及其最大雨量以及连续最长降雨天数
C.五分钟的最大强度降雨量
D.初终雪日期、积雪日期、积雪强度与密度
9、在处理基本建设与地下文物的关系时,下列哪项做法是错误的()
A.选址应尽可能避开地下文物
B.选址无法避开地下文物时,对文物应尽可能实施迁址保护
C.凡基本建设需要进行的考古调查、勘探、发掘,所需费用由建设单位列入建设工程清单
D.建设工程中如发现地下文物,应当保护现场,立即报告当地文物行政部门
10、下列关于地下工程管线敷设的说法,何项不妥?()
A.管线的走向宜与道路或建筑物主体相平行垂直
B.管线应从建筑物向道路方向由浅至深敷设
C.管线布置应短捷,重力自流管不应转弯
D.管线与管线、管线与道路应减少交叉
11、下列关于建筑基地地面坡度的规定,何者正确?()
A.应≥0.3%,≤0.8%
B.应≥3%,≤5%
C.应≥0.2%,≤8%
D.应≥2%,≤6%
12、下列有关确定建筑物等防护对象防洪标准的说法中,错误的是()。
A.防护对象的防洪标准应以防御的洪水或潮水的重现期表示
B.对特别重要的防护对象,可采用可能最大洪水表示
C.当场地内有两种以上的防护对象时,必须按防洪标准要求较高者确定
D.根据防护对象的不同需要,其防洪标准可采用设计一级或设计、校核两级
13、某场地地形坡度为9%,场地内建筑密度较大,在进行场地平整时,应采用哪种竖向布置方式?()
A.重点式
B.平坡式
C.斜坡式
D.台阶式
14、在大型综合医院的建筑布局中,如果条件有限,优先获得最佳朝向的应是()。
A.门诊部
B.手术部
C.病房
D.教学科研用房
15、下列关于城市居住区级以上(不含居住区级)的商业金融中心服务半径的说法,错误的是()。
A.特大市级的不宜超过15km
B.市级的不宜超过8km
C.区级的不宜超过4km
D.地区级的不宜超过1.5km
16、以下()项不包括在居住区竖向规划的内容之中。
A.绿化地带基土层及面层的处理
B.地形地貌的利用
C.确定道路控制高程
D.地面排水规划
17、住宅室外地面水的排水系统应根据地形特点设计,地面排水坡度最小应为下列何值?()
A.0.1%
B.0.2%
C.0.5%
D.1.0%
18、居住区的停车场建设,以下几种概念中哪种不正确?() Ⅰ.居住区内的公共活动中心、商业中心等均应配建公共停车场; Ⅱ.居住区内已建有集中车库的,公共活动中心不必再设停车场; Ⅲ.居住区内公建配建的停车场(库)宜采用地下或多层车库; Ⅳ.居住区内的饮食店、门诊所等可考虑就近步行,不考虑停车位
A.Ⅰ、Ⅲ
B.Ⅱ、Ⅲ
C.Ⅱ、Ⅳ
D.Ⅲ、Ⅳ
19、在工程项目策划阶段,有关城市购物中心规模和功能的下列说法中,正确的是()。
A.购物中心分为超大型、大区域型、大型区域型和中小型地方型
B.所有购物中心都应设置停车场
C.超大型、大区域型的购物中心其营业面积应在25000m2以上
D.超大型、大区域型的购物中心要附设有公共交通换乘站
20、根据广场的性质划分,城市广场可分为()。
A.市政广场、纪念广场、交通广场、商业广场四类
B.市政广场、交通广场、商业广场、娱乐广场、集散广场五类
C.市政广场、交通广场、商业广场、娱乐广场、纪念广场、宗教广场、集散广场七类
D.市政广场、交通广场、商业广场、休息及娱乐广场、纪念广场、宗教广场六类
21、下列关于相邻基地边界线的建筑说法()不妥。
A.相邻基地边界线之间的建筑物应按建筑防火和消防等要求留出空地或通路
B.建筑物高度不应影响相邻基地建筑物的最低日照要求
C.紧接基地边界线的建筑可以向相邻基地方向设排泄雨水口
D.紧接基地边界线的建筑不可向相邻基地方向开窗、设阳台等
22、关于基地内步行道的坡度要求,下列说法何者错误()
A.基地步行道的纵坡至少不应小于0.2%
B.基地步行道的纵坡最多不应大于8%
C.多雪严寒地区纵坡最多不应大于4%
D.横坡应为0.2%~0.5%
23、场地选择时建筑师要和各方面联系,但下列哪一项不是主要的?()
A.投资方
B.政府主管部门
C.开发公司
D.施工单位
24、当住宅小区内主要道路坡度较大时,区内主要道路与城市道路衔接的下列说法中,正确的是()。
A.直接衔接
B.降低城市道路标高
C.加宽主要道路宽度
D.设缓冲段
25、由于甲方缺乏商业地产开发经验而迟迟未能提交设计任务书,此时被委托建筑师如何做为好?()
A.等待甲方下达正式设计任务书后再开始工作
B.根据规划建设条件,以自己的专业判断完成方案
C.根据甲方不断更新的设想不厌其烦地配合甲方工作,直到甲方满意为止
D.与甲方沟通,提出建议并使其尽快理清思路,形成设计任务书
26、在工程建设进度控制计划体系中,明确各工种设计文件交付日期,设备交货日期,水电、道路的接通日期以及施工单位进场日期等计划安排的应是()。
A.工程项目总进度计划表
B.工程项目年度计划表
C.工程项目进度平衡表
D.投资计划年度分配表
27、建筑耐久年限是以下列何项确定的?()
A.主体结构
B.内外建筑装修
C.暖、通、电、信设备
D.水、电、气管线
28、下列居住区内各种管线的埋设规定中,()是错误的。
A.地下管线不宜横穿公共绿地或庭院绿地
B.给水管应远离建筑物基础,其最小水平间距为3.0m
C.电力电缆与电信管缆可共管埋设,以节约用地、简化施工
D.各种管线宜地下敷设
29、在高压走廊宽度范围内进行总体规划布置时,下列说法中正确的是()。
A.不得建任何建筑物
B.不得建主体建筑,只允许布置规模较小的附属建筑
C.不得跨过铁道线
D.不允许道路通过
30、对未经批准环境影响报告书或环境影响报告表的建设项目要实现“三不”,这“三不”是()。Ⅰ.计划部门不办理设计任务书的审批手续;Ⅱ.规委管理部门不发用地许可证;Ⅲ.土地管理部门不办理征地手续;Ⅴ.物资部门不供应基建材料;Ⅴ.银行不予贷款
A.Ⅰ+Ⅱ+Ⅲ
B.Ⅰ+Ⅱ+Ⅳ
C.Ⅱ+Ⅲ+Ⅴ
D.Ⅰ+Ⅲ+Ⅴ
31、下图为某沿城市道路建设的小商品市场总平面筒图,导入顾客人流最差的方案是()。
A.
B.
C.
D.
32、建筑控制线是指建筑物退后用地红线、道路红线、绿线、蓝线等一定距离后不能超过的界线,该线通常用来控制建筑物的哪个部位?()
A.建筑基底
B.建筑基础
C.建筑屋顶
D.建筑散水
33、下列有关多层车库的描述,哪一项是正确的()
A.因多层车库进出车辆频繁,库址应选在城市干道交叉口处
B.不宜靠近医院、学校、住宅建筑
C.不必考虑室外用地作停车、调车和修车用
D.为减小多层车库的体量,设计时要考虑到地下停车
34、关于场地管线综合的处理原则,下述何者不正确()
A.临时管线避让永久管线
B.小管线避让大管线
C.重力自流管避让压力管
D.可弯曲管避让不可变曲管
35、1/500丘陵地(2°~6°)地形图上,等高线所采用的基本等高距是()m。
A.2
B.1
C.0.5
D.5
36、国家在编制土地利用总体规划时将土地用途分为()。
A.四类,由农用地、草地和林地、沼泽地和沙漠、建设用地组成
B.三类,由农用地、草地和林地、未利用地组成
C.三类,由农用地、建设用地、未利用地组成
D.四类,由农用地、草地和林地、建设用地、未利用地组成
37、下列何者不属于“公共绿地”?()
A.居住区公园
B.小游园
C.组团绿地
D.公建绿地
38、布置居住区工程管线时首先应考虑何种敷设方式?()
A.地上敷设
B.地下敷设
C.地上架空敷设
D.地上地下相结合敷设
39、以下对“半地下室”的理解,()正确。
A.房间地平面低于室外地平面的高度超过该房间净高1/3,且不超过1/2者
B.房间地平面低于室外地平面的高度超过该房间净高1/3者
C.房间地平面低于室外地平面的高度超过该房间净高1/2者
D.房间地平面低于室外地平面的高度超过该房间净高1/3,且不超过2/3者
40、下列住宅区内公共绿地总指标的说法中哪项错误?()
A.组团不少于0.5m2/人
B.小区不少于1.0m2/人
C.居住区不少于1.5m2/人
D.旧区改建可酌情降低,但不应低于相应指标的50%
41、竖向规划阶段进行土石方量的估算范围,不包括以下()项。
A.场地平整土石方量
B.地面设施的土石方量
C.道路的土石方量
D.地下工程、管网、建(构)筑物基础等的土石方量
42、下列居住区道路用地所含内容正确的是哪一条()
A.居住区道路、小区路、组团路及宅间小路
B.居住区道路、小区路、组团路及非公建配建的居民汽车地面停放场地
C.居住区道路、小区路、组团路
D.居住区道路、小区路、组团路、宅间小路及非公建配建的居民汽车地面停放场地
43、我国建筑工程项目的色彩选择中,常用的表色体系(含色标)是()。
A.CIE(国际照明委员会)表色体系
B.日本色彩研究所表色体系
C.孟塞尔表色体系
D.奥司特瓦尔特表色体系
44、当基地与道路红线不连接时,应采取何种方法与红线连接()
A.改变红线
B.扩大用地范围
C.改变邻红线用地地界
D.设通路
45、室外运动场地方位以长轴为准。某市(地处北纬36°~45°)拟建体育中心,下列()项足球场长轴方位是符合要求的。
A.北偏东10°
B.北偏东15°
C.北偏西10°
D.北偏西15°
46、下列关于在住宅用地的防护工程设计中,土质护坡坡比值的说法,何者正确?()
A.土质护坡的坡比值不应小于0.5
B.土质护坡的坡比值不应大于0.5
C.土质护坡的坡比值宜为1.0
D.土质护坡的坡比值宜为0.6
47、下列有关畜禽场场区策划要点的说法中,错误的是()。
A.场区距离居民区应不小于3000m
B.场区距铁路、高速公路、交通于线应不小于1000m
C.场区大门设施的布置应使外来人员或车辆先经过强制性消毒区再通过门卫才能入场
D.场区内道路可根据交通流量的大小、畜禽量的多少组成一个环路且其路面应防止扬尘
48、建筑基地的高程应根据下列哪项确定?()
A.相邻的城市道路高程
B.基地现状的高程
C.建设单位的要求
D.城市规划确定的控制高程
49、按《工程勘察设计收费标准》中民用建筑复杂程度分级,下列四个项目中不属于Ⅲ级的是()。
A.20层以上的居住建筑
B.高级大型公共建筑工程
C.高度36~48m的一般公共建筑工程
D.高标准的古建筑
50、图2-1雨水在路面东西向的流向应为()。
A.由道路中心向道路东、西两侧流
B.由道路东、西两侧向道路中心流
C.向东排至东部坡地
D.向西排至西部坡地
51、在设计车行道排泄地面雨水时,雨水口形式和数量要考虑各种因素。下列哪项不是主要考虑的因素?()
A.汇水面积
B.道路级别
C.流量
D.道路纵坡
52、下列关于图书馆总平面布置的叙述中,错误的是()。
A.道路布置应便于人员进出、图书运送、装卸和消防疏散
B.新建图书馆的建筑物基地覆盖率不宜大于40%
C.如设有儿童阅览区的,应在图书馆读者入口广场中设有儿童活动的场地
D.绿化率不宜小于30%
53、对于步行商业街的有关规定,下列()项有误。
A.新建步行商业街应留有不小于5m的宽度供消防车通行
B.改、扩建的步行商业街宽度应按街内人流量确定
C.步行商业街长度不宜大于500m
D.步行商业街上空如设有顶盖时,净高不宜小于5.5m
54、为合理利用或收集地面水,采取以下()措施进行竖向设计是不正确的。
A.采用渗水路面或铺装,使雨水就地渗下
B.采用道路渗水立缘石,使路面雨水从侧面渗入地下
C.采用渗水路肩,使雨水就地渗入地下
D.使路面设计标高低于绿地地坪标高
55、缓解城市噪声的最好方法是()。
A.减少私人小汽车的数量
B.设置水体作为声障
C.提供大尺度景观作为屏障
D.增加噪声源与受声点的距离
56、建筑的抗震设防烈度主要由以下哪些条件确定() Ⅰ.建筑的重要性; Ⅱ.建筑的高度; Ⅲ.国家颁布的烈度区划图; Ⅳ.批准的城市抗震设防分区图
A.Ⅰ、Ⅲ
B.Ⅱ、Ⅲ
C.Ⅱ、Ⅳ
D.Ⅲ、Ⅳ
57、住宅基地内相邻台地间高差大于下列何值时,应在挡土墙或坡比值大于0.5的护坡顶面加设安全防护措施?()
A.0.5m
B.1.0m
C.1.2m
D.1.5m
58、停车场的设置应符合防火要求,停车场的汽车宜分组停放,每组停车不宜超过()辆。
A.100
B.50
C.150
D.25
59、下列居住区各项用地占总用地百分比的指标,正确的是()。
A.住宅用地占55%~65%
B.其他用地占1%~3%
C.道路用地占7%~15%
D.公共绿地占7.5%~18%
60、对于抗震设防烈度不同的地区,需要进行场地与地基的地震效应评价的,其设防等级应为()。
A.大于或等于8度
B.大于或等于7度
C.大于或等于6度
D.任何场地都必须进行
61、从宏观地来划分地形,以下哪种划分的分类是正确的()
A.山地、平原
B.山地、丘陵、平原
C.丘陵、平原、盆地
D.山地、丘陵、盆地
62、拟建市政府办公楼地段的条件中下列()不合适。
A.面临城市道路
B.紧邻公园
C.加油站
D.医院
63、下列关于居住区绿地的表述,错误的是()。
A.宅旁、配套公建和道路绿地应计入居住区绿地
B.居住区绿地应包含块状、带状公共绿地等
C.居住区绿地应包含老年人、儿童活动场地
D.居住区绿地与住宅用地、道路用地和公建用地共同组成居住区用地
64、建筑基地内道路应符合有关规定,下列说法何者不妥?()
A.基地内应设道路与城市道路相连接,其连接处的车行路面应设限速设施,道路应能通达建筑物的安全出口
B.沿街建筑应设连通街道和内院的人行通道(可利用楼梯间),其间距不宜大于150m
C.道路改变方向时,路边绿化及建筑物不应影响行车的有效视距
D.基地内车流量较大时应设人行道路
65、居住区非机动车道路纵坡按3%要求设计时,最大的坡长限制是()。
A.50m
B.80m
C.100m
D.150m
66、铁路客运站广场的设计应与城市总体布局协调,满足城市规划要求。下面哪种说法不妥()
A.人流、车流不得交叉,各种不同车流避免冲突
B.功能分区明确,停车场地要适当分隔
C.广场形态应与客运站用地形状相协调
D.注意美化环境,方便旅客休息
67、根据《城镇老年人设施规划规范》的要求,居住区(镇)级新建区规划设计中应配建的设施为()。
A.老年公寓、老人护理站、老年活动中心
B.养老院、老年活动中心、老年服务中心
C.养老院、老年活动中心、老人护理站
D.老年公寓、老年服务中心、老人护理站
68、居住区竖向规划的内容不包括以下哪项()
A.绿化地带基土层及面层的处理
B.地形地貌的利用
C.确定道路控制高程
D.地面排水规划
69、有关城市汽车加油站的选址和总图布置的下列阐述中,何者是正确的?()
A.城市中一级汽车加油站宜设在城市建成区
B.城市建成区的加油站应靠近城市道路,宜设在城市干道的交叉路口附近
C.加油站面向进出口道路的一侧,宜设置非实体围墙或开敞
D.加油站站内的停车场和道路路面宜用沥青路面
70、相邻的两座高层民用建筑,当较高一面外墙耐火极限不低于2.00h,墙上开口部位设有甲级防火门、窗或防火卷帘时,其防火间距至少应为()。
A.13m
B.9m
C.4m
D.不限
71、体育建筑周围消防车道应环通,当因各种原因消防车不能按规定靠近建筑物时。为满足对火灾扑救的需要,下列应采取措施中错误的是()。
A.消防车在平台下部空问靠近建筑主体
B.消防车直接开入建筑内部
C.消防车到达平台上部以接近建筑主体
D.平台上部设自动喷水灭火系统
72、相邻两座二级耐火等级的多层民用建筑,相邻外墙为不燃烧体且无外露的燃烧体屋檐,每面外墙上未设置防火保护措施的门窗洞口不正对开设,且面积之和小于等于该外墙面积的5%时,其防火间距至少应为多少?()
A.3.5m
B.4.0m
C.4.5m
D.6.0m
73、下列有关新建公共租赁住房的说法中,错误的是()。
A.以集中建设为主,配建为辅
B.可以以集体宿舍形式建设
C.可以在开发区和工业园区内建设
D.单套建筑面积要严格控制在60m2以下
74、在选择场址过程中,要收集气象资料,下列资料可不收集的是()。
A.严寒日日数
B.冬季初冻和春季解冻的日期
C.梅雨季节的开始和终结日期
D.采暖期日数
75、城市游憩集会广场用地的总面积,按城市规划人口每人多少平方米计算是符合要求的()
A.1.10~1.25m2
B.0.80~1.05m2
C.0.50~0.75m2
D.0.13~0.40m2
76、“建筑物必须满足夏季防热、遮阳、通风降温要求,冬季应兼顾防寒”应防雨、防潮、防洪、防雷电”是哪个热工分区的建筑基本要求()
A.温和地
B.寒冷地区
C.夏热冬暖地区
D.夏热冬冷地区
77、有带公建的住宅楼一栋,其总平面布局如图9-7所示。当计算居住区综合技术经济指标时,公建用地的总面积(m2)应()计算。
A.4×400m2
B.3×400m2+400m2×1/4
C.3×400m2+3/4×400m2
D.4×400m2×1/2
78、居住区内下列()地段采用明沟排水是错误的。
A.岩石
B.山坡冲刷严重
C.管沟易堵塞
D.普通居住区
79、高度大于2m的挡土墙和护坡的上缘与住宅间的水平距离不应小于()。
A.1m
B.3m
C.5m
D.8m
80、按总图制图标准,右列图例(见图)表示的正确含义是()。
A.水池、坑槽
B.水塔
C.烟囱
D.消火栓井
81、电影院、剧场、体育场馆等人员密集的建筑及有标定人数的公共建筑,其基地的集散空地面积指标一般不应小于下列哪项()
A.0.2m2/座(人)
B.0.4m2/座(人)
C.0.6m2/座(人)
D.0.8m2/座(人)
82、下列四个普通小学总平面方案,哪一个较好?()
A.A
B.B
C.C
D.D
83、下列关于地震震级的说法中,错误的是()。
A.震级是表示一次地震释放能量的大小
B.震级每差一级,地震波的强度将差32倍
C.震级表示地震的破坏程度
D.震级为5~7级的地震属破坏性地震
84、下列有关控制大气污染的论述中,错误的是()。
A.大气和空气可视为同义词,但在研究污染规律和质量评价时有时将它们分别使用
B.含有恒定组分的氯、氮、氩以及某些稀有气体氡、氖和可变组分的二氧化碳和水蒸气的大气,可视为洁净空气
C.在13类有害物质(等)的排放标准中既要控制排放量、排放标准,又要控制排气烟囱的高度
D.居民区、商业交通居民混合区属于大气环境质量标准中的一类标准
85、用于旅游配套服务功能的某小型建设项目,拟建于自然保护区内,其可选择的场址宜位于()。
A.核心区
B.实验区
C.缓冲区
D.外围保护地带
86、居住区规划竖向设计所应遵循的原则中,下列表述()错误。
A.避免填方或挖方
B.满足排水管线的埋设要求
C.避免土壤受冲刷
D.对外联系的高程应与城市道路标高相衔接
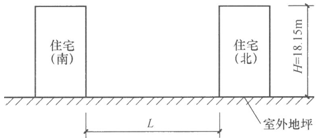
87、如图2-3所示,某城市按1.5日照间距系数在平地上南北向布置两栋六层板式住宅,已知住宅建筑高度H=18.15m,室内外高差为0.45m,一层窗台高为0.50m,两栋住宅最小日照间距L应为下列何值?()
A.L=27.23m
B.L=26.55m
C.L=25.80m
D.L=25.20m
88、在城市一般建设地区计入建筑控制高度的部分为()。
A.电梯机房
B.烟囱
C.水箱间
D.主体建筑的女儿墙
89、埋地的电力电缆、电信电缆,其与乔木中心间的水平净距应不小于()。
A.0.8m
B.1.0m
C.1.5m
D.2.0m
90、在居住区管线布置时,下列电力电缆与电信电缆的布置原则何者正确?()
A.电力电缆在道路的东侧或南侧,电信电缆在道路的西侧或北侧
B.电力电缆在道路的西侧或北侧,电信电缆在道路的东侧或南侧
C.电力电缆在道路的东侧或北侧,电信电缆在道路的西侧或南侧
D.电力电缆在道路的西侧或南侧,电信电缆在道路的东侧或北侧
参考答案:
【一、单项选择题】
1~5 DCDCC 6~10 DCCBC
11~90点击安装“注册建筑师题库APP”查看答案
如果这样刷题不过瘾,请立即安装APP刷题,历年真题、高质量模拟题应有尽有。