一级注册建筑师考试是从事建筑设计及相关业务活动的专业技术人员参考的一个难度很大的考试,建筑师需要兼备艺术家的审美眼光和工程师的力学知识,还需要具体不错的沟通能力。考试的内容包括场地设计、建筑方案设计、建筑技术设计,经济、施工与设计管理、设计前期与场地设计、建筑材料与构造等等。上学吧一级注册建筑师考试题库汇集了不少试题,为您学习刷题提供支持,现在就点击安装APP刷题。以下为试卷的详细内容:
一、单项选择题(本大题共120小题,每小题1分,共120分)参考答案见试卷末尾
1、有关拜占庭建筑的穹顶技术,下列哪一项陈述是正确的?()
A.拜占庭建筑的穹顶技术来自古罗马的穹顶技术
B.拜占庭建筑解决了在方形平面上使用穹顶的结构和建筑形式的问题
C.拜占庭建筑的穹顶结构包括帆拱、飞扶壁、穹顶
D.西欧中世纪早期教堂的十字拱和骨架券来自于拜占庭的穹顶技术
2、我国在公共建筑设计中,下列哪一种建筑与结构体系的选择是正确的?()
A.一般低层中小型公共建筑常采用钢木结构体系
B.一般多层公共建筑常采用钢筋混凝土框架结构体系
C.古代或现代仿古的公共建筑常采用砖石结构体系
D.一般体育馆建筑常采用混合结构体系
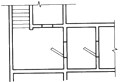
3、装有钢结构人防门的核6级甲类防空地下室,其室内出入口不宜采用下列哪一图示()。
A.
B.
C.
D.
4、在室内设计中,下列哪项装饰手法可以使空间产生扩大感?()
A.垂直划分墙面
B.水平划分墙面
C.深色调地面
D.深色调顶面
5、关于室内设计的下列叙述,哪项是正确的() Ⅰ.室内设计的目的是营造一个舒适宜人、美观大方的室内空间环境Ⅱ.室内设计需要考虑室内物理(声、光、热)环境的问题Ⅲ.室内设计主要是装饰装修设计和艺术风格设计Ⅳ.室内设计是针对有高级装修要求的建筑而言的
A.Ⅰ、Ⅲ
B.Ⅰ、Ⅱ
C.Ⅱ、Ⅳ
D.Ⅱ、Ⅲ
6、在一般混合结构住宅中,层高每降低100mm,造价可降低()。
A.1%~3%
B.5%~10%
C.10%~12%
D.12%~15%
7、某高层办公建筑的三层裙房商场内,有两个防烟楼梯间,每个梯宽1.5m;两个封闭楼梯间,每个梯宽2.0m;中庭有一个开敞楼梯,梯宽1.8m;一个室外楼梯,净宽0.8m。三层商场的疏散总宽度是()。
A.4.0m
B.7.0m
C.7.8m
D.8.8m
8、明清北京紫禁城是按照()的规则设计建造的。
A.《园冶》
B.《清工程工部做法则例》
C.《营造法式》
D.周礼三朝五门制度
9、我国古代城市雏形形成于下列哪个时代?()
A.夏代
B.商代
C.周代
D.春秋战国时代
10、这张照片显示的是1972年7月15日一组现代主义建筑被炸毁拆除。这个事件被后现代建筑理论家詹克斯宣布为现代主义建筑的“死亡”。这组被炸毁的建筑是()。
A.美国雷特本的试验住宅
B.英国哈罗新城的试验住宅
C.美国圣路易的社区住宅
D.芬兰赫尔辛基的社区住宅
11、现存中国最古老的木构楼阁建筑是()。
A.曲阜孔庙奎文阁
B.大同善化寺普贤阁
C.天津蓟县独乐寺观音阁
D.承德普宁寺大乘阁
12、公共建筑设计中下列哪项不是处理建筑功能的核心问题()
A.功能分区
B.空间组成
C.交通组织
D.空间形态
13、下列做法哪一条不符合医院传染病病房没计要求?()
A.设置单独出入口和入院处理处
B.盥洗、浴室附设于病房之内
C.两张病床之间的净距不小于1.1m
D.每间病房不得超过6张床
14、我国目前常用的标志色彩中,红、蓝、黄、绿分别作为()使用。
A.防火色、注意色、警戒色、通行色
B.防火色、指令色、注意色、安全色
C.防火色、警戒色、指令色、安全色
D.警戒色、防火色、指令色、安全色
15、古罗马帝国时期最大的广场是哪一个?()
A.凯撒广场
B.奥古斯都广场
C.图拉真广场
D.庞贝城中心广场
16、穹隆屋顶和半圆拱券是()的重要特征。
A.希腊建筑
B.罗马建筑
C.哥特建筑
D.巴洛克建筑
17、住宅坡屋顶顶板下表面与楼面间净高为下列多少时,不计入建筑面积?()
A.<1.5m
B.<1.4m
C.<1.3m
D.<1.2m
18、城市设计实践始于()。
A.20世纪初
B.19世纪
C.14世纪
D.公元纪元之初
19、特殊教育学校建筑设计中,应充分利用()。
A.天然采光和机械通风
B.天然采光和自然通风
C.人工采光和自然通风
D.人工采光和机械通风
20、中国古代明堂建筑的功能是什么?()
A.处理朝政
B.接待宾客
C.祭祀场所
D.佛教建筑
21、下列剧场最远视点的表述中,不能满足规范要求的是()。
A.伸出式剧场≯20m
B.话剧剧场≯28m
C.戏剧剧场≯30m
D.歌舞剧场≯33m
22、某栋每层层高为2.70m的7层住宅楼,其室内外高差为0.50m,则其第七层阳台栏杆净高不应低于()。
A.1.20m
B.1.10m
C.1.05m
D.1.00m
23、要使一座建筑显得富有活力、形式生动,在构图上一般采用()手法。
A.对比
B.呼应
C.节奏
D.重点
24、根据现行《建筑设计防火规范》的规定,下列叙述有误的是()。
A.设置在二级耐火等级的多层建筑首层营业厅,每个防火分区的最大允许建筑面积不应大于10000m2
B.地下商店营业厅,不应设置在地下二层及二层以下
C.地下商店应设置防烟与排烟设施
D.当地下商店总建筑面积大于20000m2时,应采用不开设门窗洞口的防火墙分隔。相邻区域确需局部连通时,应采取必要的防火分隔措施
25、区域规划的概念有以下内涵,其中不正确的是()。
A.是在一定地区内对整个国民经济社会进行总体的战略部署
B.是一项综合性、战略性和政策性的规划工作
C.是对区域内土地开发利用和保护的规划工作
D.其任务是促使区域生产力合理布局,各项建设事业协调发展
26、中世纪西欧天主教堂最正统的空间形制是()。
A.巴西利卡式
B.集中式
C.拉丁十字式
D.希腊十字式
27、下列关于平面图的施工图深度的规定中,不正确的是()。
A.当工程设计内容简单时,竖向布置图可与总平面图合并
B.建筑首层平面图上需画出指北针
C.特殊工艺要求的土建配合尺寸须画在建筑平面图上
D.如是对称平面,对称部分的尺寸及轴线号可以省略
28、公共建筑每个朝向的窗(包括透明幕墙),其窗墙面积比均不应大于()。
A.0.5
B.0.6
C.0.7
D.0.8
29、住宅分户墙必须满足()。
A.分隔空间要求,坚固要求,耐火等级要求
B.承重要求,隔声要求,安全要求
C.坚固要求,隔声要求,耐火等级要求
D.承重要求,坚固要求,耐火等级要求
30、城市是一定社会的物质空间形态,其人口具有一定规模,其居民大多数从事()活动的聚居地。
A.生产
B.非生产
C.工业生产
D.非农业生产
31、在冷色系室内环境中,家具色彩一般选用()。
A.高彩度
B.强对比色相
C.中性色系
D.暖色调
32、下述中是点式住宅的突出优点的是()。
A.四面皆可采光通风
B.分户灵活,每户可有两个朝向
C.建筑占地面积小,便于在小块地插建
D.经济性好
33、我国历史文化遗产保护体系的三个层次是()。
A.单体文物、历史文化保护区、历史文化名城
B.单体文物、群体文物、整体文物
C.国家级文物、省级文物、市级文物
D.保护文物、保留文物、修复文物
34、“凿户牖以为室,当其无,有室之用”出自()。
A.战国时期的庄子
B.秦朝的吕不韦
C.春秋时期的老子
D.春秋时期的孔子
35、下列哪座城市是以其独特的不规则城市布局在中国都市建设史上占有重要地位的?()
A.唐长安
B.明南京
C.明清北京
D.宋东京
36、把城市设计理论归纳成为路径、边界、场地、节点、标志物五元素的学者是()。
A.伊利尔·沙里宁
B.埃蒙德·培根
C.凯文·林奇
D.克里斯托夫·亚历山大
37、我国当前是处于城市化的()阶段。
A.程度很低的
B.稳定的
C.加速发展的
D.发展缓慢的
38、下列不符合现行《特殊教育学校建筑设计规范》规定的是()。
A.盲学校、弱智学校不得采用直跑楼梯
B.盲学校楼梯梯段的净宽(扶手间的净距离)不得小于1.80m
C.室内楼梯的栏杆或栏板的高度不应小于0.90m,水平部分及室外楼梯的栏杆或栏栏杆或栏板的高度不应小于1.05m
D.盲学校楼梯间沿墙应设扶手,此扶手应与走廊墙面扶手相连接
39、人民防空地下室的以下哪道墙体是临空墙?()
A.有覆土的地下室外墙
B.滤毒室和风机房之间的隔墙
C.装有密闭门的墙
D.到室外出入口的通道和人员掩蔽所之间的隔墙
40、关于公共建筑的类型,下列哪项叙述是错误的?()
A.文教建筑、交通建筑、体育建筑属于公共建筑
B.剧院、博物馆、纪念碑、航空港属于公共建筑
C.高层建筑、大跨度建筑、地下建筑属于公共建筑
D.高层写字楼、医院病房楼、仿古商业街属于公共建筑
41、在设有集中空调的大型开敞式办公室设计中,下述处理手法错误的是()。
A.空调噪声可维持在45~50dB(A)的声级
B.分隔个人办公区域的隔板高度应相当于人体身高(平均值)
C.吊顶做成吸声吊顶
D.适当降低吊顶高度
42、17世纪初年,在米开朗琪罗设计的圣彼得大教堂正立面之前又加了一段三跨的巴西利卡式大厅的建筑师是()。
A.维尼奥拉
B.伯拉孟特
C.玛丹纳
D.伯尼尼
43、汽车库、修车库的疏散楼梯应满足规范的有关要求,下列对疏散楼梯的要求哪条是错误的?()
A.室外疏散楼梯可采用金属楼梯
B.室外楼梯的倾角不应大于45°,栏杆扶手高度不应小于1.1m
C.室外楼梯每层楼梯平台均应采用不低于1.50h耐火极限的不燃烧材料制作
D.在室外楼梯周围2m范围内的墙面上,除设置疏散门外,不应开设其他的门、窗、洞口
44、城市居住区用地中约占50%的用地项目是()。
A.公共服务设施用地
B.住宅用地
C.道路用地
D.公共绿地
45、下列关于明代家具和清代家具的说法,正确的是()。
A.明代家具多用曲线,清代家具多用直线
B.明代家具简洁不过多装饰,清代家具华丽较注重装饰
C.明代家具常用紫檀木,清代家具常用黄花梨
D.明代家具体现汉族审美,清代家具体现满族审美
46、城市居住区规划中“邻里单位(Neighborhood)”规模的确定和控制决定于()。
A.小学的设置
B.商业中心的设置
C.机动车道的设置
D.公共绿地的设置
47、下列4个图形属拓扑同构的是()。
A.Ⅰ、Ⅱ
B.Ⅱ、Ⅲ
C.Ⅲ、Ⅳ
D.Ⅰ、Ⅳ
48、下列关于开发利用太阳能的论述中,何者是不妥的()
A.蕴藏量最大,取之不竭,用之不尽
B.覆盖面最广,任何地区都有开发利用价值
C.污染性最小
D.安全性最佳
49、把城市设计理论归纳为路径、边界、场地、节点、标志物五元素的学者是()。
A.伊利尔·沙里宁
B.埃蒙德·培根
C.凯文·林奇
D.克里斯托夫·亚历山大
50、对城市景观规划的理解,以下哪项不妥?()
A.在选择城市用地时,要考虑城市景观艺术的要求,对各项自然与人文景观进行分析研究,以便组织到总体布局中
B.城市景观规划是根据城市的性质规模、现状条件、城市总体布局,形成城市建设景观布局的基本构思,作为城市设计和详细规划设计考虑问题的基础
C.要根据城市总体规划的景观布局,进行城市空间的组合,以便能全面地实现城市总体景观布局的要求
D.城市景观规划与城市总体规划、详细规划是不同内容的前后两个工作阶段,各有侧重点
51、按《夏热冬冷地区居住建筑节能设计标准》的规定,4~11层和≥12层居住建筑的体形系数分别不应超过()。
A.0.30和0.40
B.0.40和0.35
C.0.35和0.45
D.0.40和0.45
52、颐和园内的谐趣园是模仿下列哪一座园林建造的?()
A.狮子林
B.瘦西湖
C.寄畅园
D.网师园
53、以城市广场为中心,以方格网道路系统为骨架的城市布局模式最早出自于()。
A.古希腊的希波丹姆(Hippodamns)
B.古罗马的维特鲁威(Vitruvius)
C.《周礼·考工记》
D.19世纪的西特(CamilloSitte)
54、建筑群体示意图(见图5-1)中,下列防火间距哪一项是错误的?()(多层建筑为一、二级耐火等级)
A.a=20m
B.b=12m
C.c=10m
D.d=9m
55、我国考古发现最早的廊院式建筑是()。
A.河南偃师二里头宫殿遗址
B.浙江余姚河姆渡遗址
C.西安半坡村遗址
D.西周,陕西岐山风雏村遗址
56、以下对居住区绿地规划基本要求的叙述中,哪一条是不正确的()
A.集中与分散相结合
B.重点与一般相结合
C.点、线、面相结合
D.尽可能避开劣地、坡地、洼地进行绿化
57、下列哪项不属于“可持续发展”概念的要求?()
A.生态的可持续性
B.充分利用优质地下资源
C.社会、文化、经济领域的可持续性
D.其核心是发展
58、《周礼·考工记》体现我国古代城市规划思想是()。
A.以管子为代表的自然至上理念
B.崇尚商品经济和世俗生活的规划思想
C.道家“天人合一”的理念
D.以儒家为代表的维护礼制、皇权至上的理念
59、托幼建筑、中小学建筑楼梯设计,下列哪一条是错误的?()
A.梯井宽度大于0.2m,采取防止儿童攀滑措施和不易攀登构造
B.采用垂直栏杆杆件时,垂直杆件间距不大于0.20m
C.踏步宽高尺寸为0.26m×0.15m
D.踏步应采取防滑措施
60、拜占庭建筑中解决圆形穹顶与方形平面间过渡性的结构部分称为()。
A.筒形拱
B.十字拱
C.骨架券
D.帆拱
61、按清代工部《工程作法》规定,大木小式建筑的面阔尺度由下列哪项来确定?()
A.斗口尺寸
B.斗栱尺度
C.檐柱高度
D.明间面阔及檐柱径
62、城市道路按功能分为()两类。
A.交通性道路和生活性道路
B.货运道路和客运道路
C.集散性道路和联络性道路
D.交通性道路和服务性道路
63、下列中国古代建筑的屋顶形式中哪一种等级最低?()
A.悬山
B.歇山
C.庑殿
D.硬山
64、1999年第20届国际建协(UIA)在北京召开,大会的主题是()。
A.可持续发展的建筑
B.生态节能建筑
C.城市化的建筑
D.面向21世纪的建筑学
65、我国现存最早的唐代木建筑是()。
A.山西五台山佛光寺大殿
B.山西五台山南禅寺
C.河北正定隆兴寺
D.西安大明宫麟德殿
66、烟道或通风道应伸出屋面,伸出高度至少不应小于()m。
A.0.3
B.0.4
C.0.5
D.0.6
67、白色和黑色在色彩应用中具有特殊的作用。下列陈述中正确的是()。
A.黑色可将相邻的色彩衬托得更加鲜艳
B.白色和其他色彩调和,会使其他色调变暖
C.任何色彩在白色背景下都会提高彩度
D.白色和金色是暖色,黑色和银色是冷色
68、按照《高层民用建筑设计防火规范》的规定,下列隔墙属于防火墙的是()。
A.消防电梯井的隔墙
B.住宅单元之间的隔墙
C.室内防烟楼梯间的隔墙
D.柴油发电机房内储油间的隔墙
69、如图所示三个中国古代城市,分别是哪个朝代的哪个城市?
A.唐朝长安、元朝大都、东晋南朝建康
B.汉朝长安、明朝北京、南宋临安
C.唐朝长安、元朝大都、明朝南京
D.唐朝洛阳、明朝北京、南宋临安
70、下列说法符合《办公楼建筑设计规范》的是()。
A.五层及五层以上办公建筑应设电梯
B.办公建筑面积每6000m2至少设置1台
C.办公室门洞口宽度不应小于0.9m,高度不应小于2.10m
D.一类办公室的室内净高不得低于2.60m
71、无自然采光楼梯间和封闭楼梯间各部位装修材料的燃烧性能的等级应为()。
A.顶棚B1级,墙面A级,地面A级
B.顶棚A级,墙面A级,地面A级
C.顶棚A级,墙面B1级,地面A级
D.顶棚B1级,墙面A级,地面B1级
72、在描述当代城市规划思想方法的变革时,不恰当的是()。
A.由单向封闭型转向复合发散型
B.由静态理想转向动态过程
C.由物质形态转向社会经济
D.由指令性转向引导性
73、颐和园内的谐趣园是模仿下列哪一座园林建造的?()
A.狮子林
B.瘦西湖
C.寄畅园
D.网师园
74、老年人居住建筑中卧室、起居室的采光窗洞口面积与该房间的面积之比不宜小于()。
A.1/5
B.1/6
C.1/7
D.1/8
75、清代园林兴盛,其中避暑山庄的风格特征是()。
A.中轴对称的离宫别馆
B.集民间园林之大成
C.皇家气派宏大
D.红墙黄瓦,金碧辉煌
76、高层建筑内400m2的观众厅、会议厅、多功能厅应设置在()。
A.地下一、二层
B.首层或二、三层
C.四层及四层以上
D.顶层
77、按照《民用建筑设计通则》的规定,栏杆底部的可踏面的准确含义是()。
A.宽度大于0.22m,且高度低于0.45m的可踏部位
B.宽度大于或等于0.22m,且高度低于或等于0.45m的可踏部位
C.宽度大于或等于0.22m,且高度低于0.45m的可踏部位
D.宽度大于0.22m,且高度低于或等于0.45m的可踏部位
78、《高层民用建筑设计防火规范》中,裙房系指与高层建筑相连的附属建筑,其高度最高不超过()。
A.12m
B.15m
C.18m
D.24m
79、西班牙阿尔罕布拉宫,印度泰姬陵、印度桑奇大塔、柬埔寨吴哥窟的宗教风格分别属于()。
A.伊斯兰教、印度教、印度教、佛教
B.伊斯兰教、伊斯兰教、佛教、佛教
C.伊斯兰教、伊斯兰教、佛教、印度教
D.基督教、伊斯兰教、佛教、印度教
80、下述四组能源中,哪一组全部是可再生能源?()
A.太阳能、风能、天然气、沼气
B.风能、太阳能、潮汐能、植物能
C.风能、太阳能、氢能、核能
D.核能、水电、天然气、太阳能
81、下列是早期文艺复兴时期府邸的典型作品的是()。
A.麦西米府邸
B.美狄奇—吕卡第府邸
C.潘道菲尼府邸
D.法尔尼斯府邸
82、防空地下室上部建筑层数为九层,按规范规定人员掩蔽工程每个防护单元的建筑面积应()。
A.≤2000m2
B.≤1500m2
C.≤1200m2
D.≤1000m2
83、人对居住环境的共同心理需求除了安全感、私密性外,还有()。
A.灵活性、开敞性
B.领域感、封闭性
C.邻里交往、自然回归性
D.宗教精神性、情趣和意境
84、有集中空调的大型开敞式办公室室内设计中,下列哪种处理手法是适当的?()
A.适当降低吊顶高度,并做成吸声吊顶
B.分隔个人办公区域的隔板高度应相当于人的身高(平均值)
C.空调噪声要小于40dB(A),以保证办公室安静
D.采用大面积发光顶棚的人工照明,以满足办公要求
85、下列四座古埃及建筑哪座建造年代最早?()
A.
B.
C.
D.
86、住宅走廊及公共部分通道的净宽和局部净高各不应低于多少?()
A.1.25m,2.20m
B.1.20m,2.00m
C.1.10m,2.00m
D.1.00m,2.10m
87、防空地下室设计必须满足其预定的战时对各类武器的各项防护要求,甲类和乙类防空地下室除满足常规武器外,还应分别满足()。
A.生化武器、核武器、电磁武器防护要求,生化武器、核武器防护要求
B.生化武器、核武器防护要求,生化武器防护要求
C.生化武器、核武器防护要求,核武器防护要求
D.生化武器、核武器、电磁武器防护要求,生化武器防护要求
88、关于消防电梯设置正确的是()。
A.前室门在首层通向室外出口的通道长度不应超过35m
B.载重量不应小于900kg
C.前室门应采用乙级防火门
D.机房与相邻其他电梯机房之间应采用耐火极限不低于2.00h的隔墙隔开,当在隔墙上开门时应设乙级防火门
89、中国古代室内家具基本上废弃了席坐时代的低矮尺度,普遍因垂足坐姿而采用高桌椅,室内空间也相应提高。这一变化发生在()。
A.汉代
B.唐代
C.宋代
D.元代
90、广义“节能”的含义包括以下哪两方面?() Ⅰ.节约传统能源; Ⅱ.开发利用可持续能源; Ⅲ.节约一切能源; Ⅳ.有效用能
A.Ⅰ、Ⅱ
B.Ⅱ、Ⅲ
C.Ⅱ、Ⅳ
D.Ⅲ、Ⅳ
91、第二次世界大战后,20世纪40~60年代,讲求技术精美倾向的建筑思潮的代表作品是()。
A.纽约林肯文化中心
B.西格拉姆大厦
C.布鲁塞尔博览会美国馆
D.美国在新德里的大使馆
92、办公建筑电梯最少设置数量取决于()。
A.建筑高度
B.建筑面积
C.建筑投资
D.建筑布局
93、天安门广场的比例尺度,即高宽比为()。
A.1:3
B.1:6
C.1:12
D.1:20
94、普通民用建筑物和构筑物的设计使用年限为多少年?()
A.25年
B.50年
C.70年
D.100年
95、以下二图所示建筑的设计者和设计项目是()。
A.赫尔佐格与德梅隆,葡萄酒厂
B.赫尔佐格与德梅隆,美术馆
C.马里奥·博塔,山区修道院
D.马里奥·博塔,博物馆
96、从使用性质分,依国标规定城市公共设施用地分为()。
A.8类
B.10类
C.46类
D.73类
97、华盛顿国家美术馆东馆建筑属于()。
A.几何形构图
B.具体的象征
C.抽象的象征
D.隐喻主义
98、以下哪组轴线编号不符合规定?()
A.普通轴线编号①、②…,A、B…
B.
C.
D.圆形平面,径向轴线编号①、②…圆周轴线编号A、B…
99、以祠堂为中心、中轴对称且具有单元式住宅特征的民居是()。
A.北京四合院
B.新疆阿以旺
C.福建客家土楼
D.徽州民居
100、关于20世纪前期国外发展的卫星城镇,以下叙述哪项有误?()
A.从发展过程划分为卧城、半独立卫星城及全独立新城三种模式
B.其规模由小变大
C.新城可提供多种就业机会,有完整的公共文化生活服务设施
D.新城的代表为二战前建设的瑞典的魏林比(Vallinby)
101、以其独特的不规则布局在中国古代城市建设史上占有重要地位的城市是()。
A.汉长安
B.明南京
C.明清北京
D.宋东京
102、在广场规划设计的要点中,广场的面积与比例尺度取决于()。
A.功能、观赏要求和客观条件
B.交通流畅
C.建筑物的尺度
D.地面铺装与绿化
103、在公共建筑中,以下哪一种竖向交通方式不能作为防火疏散之用?()
A.封闭楼梯
B.室外楼梯
C.自动扶梯
D.防烟楼梯
104、按住宅性能评定技术标准评定得分所划分的级别,以下哪项错误?()
A.划分为A、B两个级别
B.A级住宅为执行国家标准且性能好者
C.B级住宅为执行国家现行强制性标准但性能达不到A级者
D.A级按照得分由高到低细分为1A、2A、3A、4A四级
105、确定城市性质的主要依据和方法中,下列哪项错误?()
A.综合分析城市的主导因素及其特点
B.明确其主要职能及发展方向
C.定性分析与定量分析相结合
D.以城市的“共性”作为城市的性质
106、以下室内人工光源中,显色指数最低的是()。
A.高压钠灯
B.白炽灯
C.卤钨灯
D.日光色荧光灯
107、民用建筑按功能分为两大类,下列哪项正确?()
A.住宅与办公共建筑
B.单体与群体
C.高层与低层建筑
D.居住与公共建筑
108、拜占庭建筑富于装饰的根本原因是()。
A.皇权的影响
B.受伊斯兰建筑的影响
C.结构的解放
D.与砌筑材料相关
109、按照现行防火规范的术语解释,难燃烧体的定义是()。
A.用不燃烧材料做成的建筑构件
B.用不燃烧材料或难燃烧材料做成的建筑构件
C.用难燃烧材料与不燃烧材料混合做成的建筑构件
D.用难燃烧材料做成的建筑构件或用燃烧材料做成而用不燃烧材料做保护层的建筑构件
110、复式汽车库的防火分区最大允许建筑面积应为汽车库防火分区最大允许建筑面积的()。
A.50%
B.65%
C.85%
D.100%
111、高层建筑避难层的设置,不确切的是()。
A.两个避难层之间不宜超过18层
B.避难层应设消防电梯出口
C.避难层可兼作设备层
D.避难层应设有应急广播
112、下述哪项描述与日本伊势神宫建筑无关?()
A.为祭祀天照大神的神道教建筑
B.其粗砺的砌石与细致的木雕形成对比
C.神宫立有每20年重建一次的规矩
D.其白木茅草与黄金交相辉映
113、厕所、卫生间可以直接布置在下列哪类用房的上层?()
A.餐厅、厨房
B.医药、医疗房
C.变配电房
D.本套住宅的卧室
114、下列哪项表述与城乡规划法的相应规定不符?()
A.城乡规划包括城镇体系规划、城市规划、镇规划
B.城乡规划包括城镇体系规划、城市规划、镇规划、乡规划、村庄规划
C.城市规划、镇规划分为总体规划和详细规划
D.详细规划分为控制性详细规划和修建性详细规划
115、为提高公共建筑的经济性,设计中要注重考虑增加建筑的()。
A.外围护面积
B.有效面积
C.单位有效面积的体积
D.人均用地定额
116、下列建筑分别对应的风格是()。Ⅰ.维琴察圆厅别墅;Ⅱ.巴黎歌剧院;Ⅲ.罗马特拉维喷泉
A.文艺复兴风格、折中主义、巴洛克
B.文艺复兴风格、巴洛克风格、洛可可风格
C.罗马风格、古典主义、罗曼风格
D.古典主义、洛可可风格、巴洛克风格
117、承德“外八庙”中模仿布达拉宫修建的喇嘛教寺院是()。
A.普佑寺
B.普乐寺
C.普陀宗乘庙
D.须弥福寿庙
118、文丘里的名著中为后现代主义建筑的重要理论著作的是()。
A.《走向新建筑》
B.《建筑的复杂性与矛盾性》
C.《时间、空间与建筑》
D.《后现代建筑的语言》
119、下列老年人居住建筑公用走道的设计表述中,哪项不符合规范要求?()
A.有效宽度不小于1.50m
B.设有告示牌和宣传灯箱,突出墙面0.25m
C.地面有高差处设置1:12的坡道
D.设置单层扶手时高度为0.80~0.85m
120、《建筑设计防火规范》对于室外疏散楼梯的规定,正确的是()。
A.倾斜角度不应大于45°
B.楼梯的净宽度不应小于0.85m
C.栏杆扶手的高度不应小于1.05m
D.除疏散门外,楼梯周围1.00m内的墙面上不应设置门窗洞口
参考答案:
【一、单项选择题】
1~5 BBABA 6~10 ABDBC
11~120点击安装“注册建筑师题库APP”查看答案
如果这样刷题不过瘾,请立即安装APP刷题,历年真题、高质量模拟题应有尽有。