一级注册建筑师考试是从事建筑设计及相关业务活动的专业技术人员参考的一个难度很大的考试,建筑师需要兼备艺术家的审美眼光和工程师的力学知识,还需要具体不错的沟通能力。考试的内容包括场地设计、建筑方案设计、建筑技术设计,经济、施工与设计管理、设计前期与场地设计、建筑材料与构造等等。上学吧一级注册建筑师考试题库汇集了不少试题,为您学习刷题提供支持,现在就点击安装APP刷题。以下为试卷的详细内容:
一、单项选择题(共90题,每题1分。每题的备选项中,只有1个最符合题意)参考答案见试卷末尾
1、下列属于有机材料的是()。
A.混凝土
B.合金钢
C.塑料板
D.铝塑板
2、关于孔隙率的说法,正确的是()。
A.一般孔隙率越大,材料的密度越大
B.一般孔隙率越大,材料的强度越高
C.一般孔隙率越大,材料的保温性能越差
D.一般孔隙率越大,材料的吸声性能越高
3、关于花岗岩板材,说法正确的是()。
A.属于酸性石材
B.质地坚硬不耐磨
C.构造致密强度低
D.密度大吸水
4、天然大理石通用厚度是()mm。
A.10
B.12
C.15
D.20
5、下列对灰土描述正确的是()。
A.由熟石灰、黏土、砂或石组成
B.抗压强度与土塑性指数有关
C.抗渗性能与土塑性指数无关
D.抗压强度与灰土含灰率无关
6、关于水玻璃的说法,正确的是()。
A.粘结力弱
B.耐酸性强
C.耐热性差
D.耐水性好
7、硅酸盐水泥化学指标不包括()。
A.三氧化硫
B.氯离子
C.氧化镁
D.水化热
8、下列属于混凝土的主要性质的是()。
A.抗剪强度
B.抗拉强度
C.抗压强度
D.疲劳强度
9、关于加气混凝土的说法,正确的是()。
A.表观密度越大,孔隙率越大
B.表观密度越小,强度越大
C.表观密度越小,保温性能越好
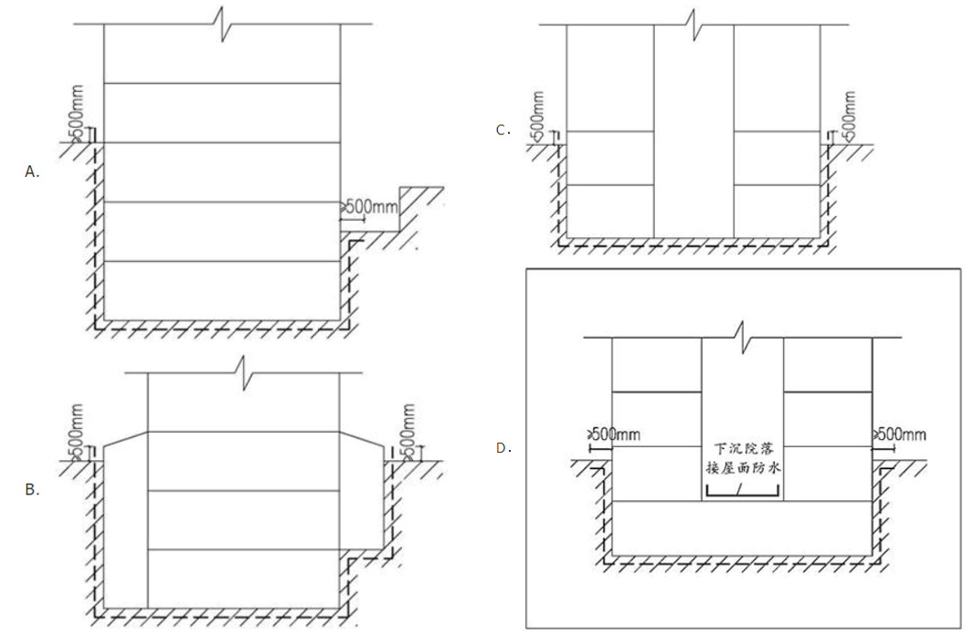
D.表观密度越大,抗渗性能越差
10、下列属于硅酸盐系列水泥的通用水泥是()。
A.普通硅酸盐水泥
B.油井水泥
C.硅酸盐膨胀水泥
D.低碱水泥
11、关于砂中含有有机物,对混凝土的影响是()。
A.减缓水泥的凝结
B.影响混凝土的抗冻
C.导致混凝土的开裂
D.影响混凝土的抗渗
12、关于混凝土拌合用水,错误的是()。
A.可用符合国家标准的生活用水
B.用海水拌装饰用混凝土
C.用海水拌素混凝土
D.要控制氯离子含量
13、配置高强混凝土应选用的水泥是()。
A.火山灰水泥
B.硅酸盐水泥
C.矿渣水泥
D.粉煤灰水泥
14、关于胶合板,下列说法正确的是()。
A.易开裂
B.幅面大
C.易翘曲
D.强度低
15、冷弯型钢不能用()。
A.普通低碳结构钢
B.低合金结构钢
C.优质低碳结构钢
D.热轧钢板
16、关于压型钢板,说法正确的是()。
A.质量重
B.可用于楼板
C.强度低
D.抗震性能差
17、关于铝合金的说法,正确的是()。
A.延性差
B.不可用于屋面板
C.强度高
D.不可用于扶手
18、关于膨胀蛭石的说法,正确的是()。
A.耐冻融性差
B.防火性能好
C.吸声性弱
D.导热系数大
19、蒸压加气混凝土可用在哪里?()
A.屋面板
B.建筑基础
C.泳池隔墙
D.清水外墙
20、关于外墙岩棉保温材料的说法,正确的是()。
A.岩棉板纤维垂直于板面
B.岩棉板拉伸强度高于岩棉条
C.岩棉条拉伸强度取决于纤维强度
D.岩棉条纤维平行于条面
21、民用建筑内墙涂料常用()。
A.聚乙烯醇水玻璃内墙涂料
B.聚乙烯醇缩甲醛内墙涂料
C.环氧树脂涂料
D.树脂水性涂料
22、下列属于非结构胶的是()。
A.聚乙烯醇
B.酚醛树脂
C.环氧树脂
D.聚氨酯
23、塑料门窗型材原材料的主要成分是()。
A.聚氯乙烯
B.聚苯乙烯
C.聚丙烯
D.聚乙烯
24、下列不属于树脂类油漆的是()。
A.清漆
B.磁漆
C.硝基漆
D.调和漆
25、下列属于安全玻璃的是()。
A.半钢化玻璃
B.夹丝玻璃
C.着色玻璃
D.中空玻璃
26、关于建筑幕墙玻璃的选用要求,错误的是()。
A.中空玻璃单片玻璃厚度不宜小于5mm
B.夹层玻璃两片厚度差值不宜大于3mm
C.中空玻璃的气体厚度不应小于9mm
D.夹层玻璃的胶片厚度不应小于0.76mm
27、外墙装饰全瓷面砖吸水率不应大于()。
A.1%
B.5%
C.8%
D.10%
28、织物性锦纶装饰材料的成分是()。
A.聚酯纤维
B.聚酰胺纤维
C.聚丙烯纤维
D.聚丙烯腈纤维
29、剧场观众厅帷幕的燃烧性能不应低于()。
A.A1级
B.A2级
C.B1级
D.B2级
30、地下工程防水混凝土底板迎水面不宜采用以下哪种防水材料?()
A.膨润土防水板
B.三元乙丙橡胶防水卷材
C.水泥基渗透结晶型防水涂料
D.自粘聚合物改性沥青防水卷材
31、幕墙系统采用矿物棉外保温材料时,外墙整体防水层宜选用下列哪种材料?()
A.聚合物防水砂浆
B.聚氨酯防水涂料
C.防水隔气膜
D.防水透气膜
32、关于薄涂型防火涂料的说法,错误的是()。
A.属于膨胀型防火涂料
B.受火时形成泡沫层隔热阻火
C.涂刷24h风干后才能防火阻燃
D.涂刷遍数与耐燃阻燃性质无关
33、独立建造的托老所,其外墙外保温应采用下列哪种材料?()
A.聚苯板
B.岩棉板
C.酚醛板
D.聚氨酯板
34、不适用于化工防腐蚀工程的油漆是()。
A.环氧漆
B.沥青漆
C.聚氨酯漆
D.醇酸漆
35、多孔性吸声材料表观密度的变化对吸声效果的影响,下列说法正确的是()。
A.表观密度增加,低频吸声性能提高
B.表观密度增加,高频吸声性能不变
C.表观密度减少,低频吸声性能提高
D.表观密度减少,高频吸声性能下降
36、下列防辐射材料中防X射线性能较差的是()。
A.抗辐射玻璃
B.抗辐射铅板
C.防辐射塑料板
D.XFF复合铅胶合板
37、安装在轻钢龙骨上的吊顶板材,不能作为A级装饰材料的是()。
A.水泥蛭石板
B.B1级纸面石膏板
C.纤维石膏板
D.B1级矿棉吸声板
38、下列属于利废建材的是()。
A.脱硫石膏板
B.旧钢结构型材
C.难以直接回用的玻璃
D.标准尺寸钢结构型材
39、绿色建筑功能性建筑材料不宜选用的是()。
A.减少建筑能耗的建筑材料
B.防潮、防霉变的建筑材料
C.装饰效果较好的建筑材料
D.改善室内环境的材料
40、下列不属于可再循环建筑材料的是()。
A.钢筋
B.玻璃
C.铝型材
D.混凝土
41、位于湿陷性黄土地基上的建筑,当屋面为无组织排水时,檐口高度在8m以内,则散水宽度宜为()。
A.0.9m
B.1.0m
C.1.2m
D.1.5m
42、可用于轮椅坡道面层的是()。
A.镜面金属板
B.设防滑条的水泥面
C.设礓磋的混凝土面
D.毛面花岗石
43、关于地下工程的水泥基渗透结晶防水涂料,正确用法是()。
A.用量≥1.0kg/m2
B.用量≥1.5kg/m2,且厚度≥1.0mm
C.厚度≥1.5mm
D.用量≥1.0kg/m2,且厚度≥1.5mm
44、地下工程后浇带应采用何种混凝土浇筑?()
A.补偿收缩混凝土
B.预支混凝土
C.普通混凝土
D.防水混凝土
45、不符合地下工程防水混凝土种植顶板防水设计要求的是()。
A.种植顶板的防水等级应为一级
B.种植顶板的厚度≥200mm
C.种植顶板排水应采用结构找坡
D.种植顶板应设耐根穿刺防水层
46、下列图中防水设防正确的是()。
A.A
B.B
C.C
D.D
47、关于地下工程混凝土结构后浇带超前止水构造做法,错误的是()。
A.后浇带部位的混凝土局部加厚
B.后浇带的宽度宜为700~1000mm
C.后浇带的抗渗等级不应低于两侧混凝土
D.结构预留缝处应设遇水膨胀止水条
48、外保温系统拉伸破坏应位于哪个部位?()
A.粘接层
B.保温层
C.饰面层
D.抹面层
49、下列示意图中,蒸压加气混凝土砌块墙体窗洞口构造,正确的是()。
A.上有过梁,下有窗台梁,两侧有预制块
B.上有过梁,下无窗台梁,两侧有预制块
C.上无过梁,下有窗台梁,两侧有预制块
D.上无过梁,下有窗台梁,两侧无预制块
50、抗震设防烈度6~8度地区的多层砖砌体房屋,门窗洞口处钢筋混凝土过梁的支承长度不应小于()。
A.120mm
B.150mm
C.180mm
D.240mm
51、装配式混凝土建筑的层高和门窗洞口高度等宜采用的竖向扩大模数数列是()。(M=100,n为自然数)
A.3nM
B.2nM
C.nM
D.nM/2
52、关于建筑外墙外保温防火隔离带的设计要求,下列不符合规范的是()。
A.防火隔离带的宽度不应小于300mm
B.防火隔离带保温材料的燃烧性能等级应为A级
C.防火隔离带的厚度宜与处墙外保温系统的厚度相同
D.防火隔离带保温板使用锚栓辅助连接时与基层墙面可采用点粘
53、不符合装配式混凝土建筑预制外墙接缝设计要求的是()。
A.接缝位置宜与建筑立面分格相对应
B.竖向缝宜采用平口构造
C.水平缝宜采用槽口构造
D.接缝宜避免跨越防火分区
54、下列图中45m高办公楼的外墙外保温构造正确的是()。
A.B1级保温,无防火隔离带,首层二层防护厚度均为5mm
B.B1级保温,有300高防火隔离带,首层二层防护厚度均为5mm
C.B1级保温,无防火隔离带,首层防护厚度15mm,二层防护厚度5mm
D.B1级保温,有300高防火隔离带,首层防护厚度15mm,二层防护厚度5mm
55、下列种植顶板防水构造正确的是()。
A.由上至下:排(蓄)水层—普通防水层—耐根穿刺防水层—找平层
B.由上至下:排(蓄)水层—普通防水层—找平层
C.由上至下:排(蓄)水层—耐根穿刺防水层—普通防水层—找平层
D.由上至下:排(蓄)水层—普通防水层—找平层—耐根穿刺防水层
56、下列保温、隔汽屋面构造示意图,正确的是()。
A.A
B.B
C.C
D.D
57、屋面防水附加层选用高聚物改性沥青防水涂料时,其最小厚度应为多少?()
A.1.2mm
B.1.5mm
C.2.0mm
D.3.0mm
58、不符合倒置式屋面设计要求的是()。
A.倒置式屋面坡度不宜小于3%
B.倒置式屋面可不设置透气孔或排气槽
C.倒置式屋面的保温层厚度按计算厚度的1.2倍取值
D.硬泡聚氨酯防水保温复合板可作为次防水层用于两道防水设防的倒置式屋面
59、金属板屋面上的固定支座与支承构件,当选用不同材质的金属材料时,两者之间应采用绝缘垫片,其主要作用是()。
A.防雷电传导
B.防振动变形
C.防电化学腐蚀
D.防止热胀冷缩
60、关于玻璃采光顶所用夹层玻璃的要求,错误的是()。
A.夹层玻璃的玻璃原片厚度不宜小于5mm
B.夹层玻璃宜采用干法加工合成
C.夹层玻璃两片玻璃厚度相差不宜大后2mm
D.夹层玻璃的胶片厚度不应小于0.38mm
61、坡度为10%的金属板屋面,当采用低波压型金属板时,其纵向最小搭接长度应为多少?()
A.200mm
B.250mm
C.300mm
D.350mm
62、抗震设防地区,条板隔墙与结构梁的连接方式应采用()。
A.砂浆
B.钢卡
C.木锲
D.胶粘
63、下列双层条板隔墙构造正确的是()。
A.双层60mm,无错缝
B.双层90mm,无错缝
C.双层60mm,错缝200mm
D.双层900mm,错缝100mm
64、关于轻钢龙骨石膏板隔墙构造中,防火性能较优的是()。
A.双面层石膏板,中间有加一层石膏隔板,开关盒无错开
B.双面层石膏板,中间有加一层石膏隔板,开关盒有错开
C.双面层石膏板,中间有未加石膏隔板,开关盒有错开
D.单面层石膏板,中间有加一层石膏隔板,开关盒有错开
65、使用6mm厚钢化玻璃,其最大使用面积不应超过()。
A.1.5m2
B.3.0m2
C.4.0m2
D.5.0m2
66、90mm轻质条板隔墙接板安装高度不应大于多少?()
A.3.0m
B.3.3m
C.3.6m
D.3.9m
67、关于轻质隔墙板的说法,错误的是()。
A.在轻质隔墙上开槽敷设电气暗线时,隔墙厚度应大于90mm
B.石膏板隔墙用于潮湿环境时,下端应做混凝土条形墙垫
C.限高以内安装条板隔墙时,竖向接板不宜超过一次
D.分户隔墙选用符否隔声性能要求的单层条板时,其厚度不应小于100m
68、当吊灯必须切断主龙骨时,应采取的有效加强和补救措施是()。
A.加密吊杆间距
B.增加吊灯板厚
C.减轻设备重量
D.设置加强龙骨
69、双层石膏板吊顶伸缩缝示意图,正确的是()。
A.A
B.B
C.C
D.D
70、重4kg吊灯应固定在()。
A.吊顶饰面板上
B.次龙骨上
C.主龙骨上
D.建筑承重结构上
71、不适用于抗震支吊架与混凝土结构板连接方式的是()。
A.膨胀锚栓
B.自扩底锚栓
C.模扩底锚栓
D.双锁键锚栓
72、金属面板吊顶,当采用单层龙骨时,龙骨至板端的尺寸最小应为()。
A.300mm
B.250mm
C.200mm
D.150mm
73、潮湿地区房间当吊顶采用耐水石膏板时,其次龙骨间距最小宜为()。
A.300mm
B.400mm
C.500mm
D.600mm
74、直接铺设楼地面面层,应设分格缝的是()。
A.花岗岩
B.瓷砖
C.沥青类
D.细石混凝土
75、工业厂房地面垫层的最小厚度宜为()。
A.100mm
B.80mm
C.60mm
D.40mm
76、如图所示,卫生间防水层在门口处水平向外延伸最小尺寸是()。
A.a=500mm,b=200mm
B.a=400mm,b=200mm
C.a=400mm,b=100mm
D.a=300mm,b=100mm
77、关于医院洁净手术部地面的设计要求,错误的是()。
A.地面整体应平整洁净易清洗
B.地面材料应耐磨防水耐腐蚀
C.地面颜色应以深底色为宜
D.地面踢脚做成R≥40mm阴圆角
78、关于消防电梯的设计要求,错误的是()。
A.消防电梯墙体的耐火极限不低于2h
B.消防电梯基坑应设置排水设施
C.消防电梯前室的门可设置卷帘
D.电梯轿厢的内部装修应采用不燃材料
79、玻璃幕墙可开启扇的最大开启角度宜为()。
A.20°
B.30°
C.45°
D.60°
80、采用胶缝传力的全玻璃幕墙应采用下列哪种密封胶?()
A.硅酮耐候密封胶
B.硅酮结构密封胶
C.丁基热熔密封胶
D.氯丁橡胶密封条
81、塑料门窗安装固定片的间距最大为()。
A.600mm
B.700mm
C.800mm
D.900mm
82、小学二层教室的临空外窗应选择()。
A.外平开窗
B.内平开窗
C.上悬内开窗
D.下悬外开窗
83、采用B1级外保温材料的二类高层住宅,外墙上门窗的耐火完整性不应低于()。
A.0.5h
B.0.9h
C.1.0h
D.1.5h
84、关于避难走道的具体要求,下列哪条不符合规范?()
A.避难走道的防火隔墙耐火极限不应低于3h
B.避难走道楼板耐火极限不应低于1.5h
C.避难走道内部装修材料的燃烧性能应为A级
D.防火分区开向避难走道前室的门应为乙级防火门
85、下图中加强网与各墙体的搭接最小宽度a是()。
A.40mm
B.60mm
C.80mm
D.100mm
86、下列石材幕墙中石材面板的安装方式,错误的是()。
A.粘接式
B.通槽式
C.短槽式
D.背卡式
87、关于外幕墙上的石材说法,错误的是()。
A.石材宜选择火成岩
B.石材吸水率宜小于0.8%
C.石材火烧面板的厚度不应小于25mm
D.单块石材板面大小不应大于1.5m2
88、下图关于软弱地基上的5层建筑物屋面沉降变形缝节点,正确的是()。
A.缝宽60mm,无阻火带
B.缝宽100mm,无缝内保温带
C.缝宽60mm,有阻火带与保温带
D.缝宽100mm,有阻火带与保温带
89、多层砌体房屋防震缝的设置要求,错误的是()。
A.房屋高差6m时可不设防震缝
B.错层且楼板高差较大时宜设置防震缝
C.防震缝两侧宜在单侧设置墙体
D.防震缝的缝宽应根据烈度和房屋高度确定
90、关于地下建筑变形缝的说法,正确的是()。
A.沉降变形缝最大允许沉降差值应≤50mm
B.变形缝的宽度宜为40mm
C.变形缝中埋式止水带应采用金属制作
D.防空地下室防护单元内不应设置伸缩缝或沉降缝
参考答案:
【一、单项选择题】
1~5 CDADB 6~10 BDCCA
11~90点击安装“注册建筑师题库APP”查看答案
如果这样刷题不过瘾,请立即安装APP刷题,历年真题、高质量模拟题应有尽有。